|
TPL Rulman Yatakları (Kızak Gerdirmeli), konveyör ve döner mil sistemlerinde hassas gerdirme ayarı gerektiren uygulamalar için geliştirilmiş özel rulman yataklama çözümleridir. Gerdirme gerektiren konveyör bantları, zincir tahrik sistemleri ve yüksek doğruluk isteyen uygulamalarda maksimum kontrol sağlar. Teknik Özellikler
Kullanım Alanları
Avantajları ✔ Hassas mil gerdirme ayarı |
| Malzeme | Ölçüler (mm) | KG | ![]() |
Stok Kod (Metal Rulmanlı Yatak) |
KG | ![]() |
Stok Kod (Rulmansız Yatak) | Stok Kod (Paslanmaz Rulmanlı Yatak) | Yük Kapasitesi | ![]() |
||||||||||||
|---|---|---|---|---|---|---|---|---|---|---|---|---|---|---|---|---|---|---|---|---|---|---|
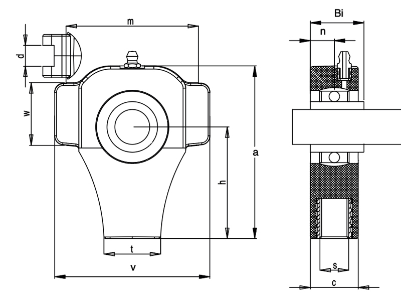
| Ø EJE | a | c | d | h | m | s | t | w | v | Bi | n | dyn (N) | st (N) | |||||||||
| PA | Ø 20 | 99 | 27,5 | 11,5 | 64 | 76 | M16 | 33 | 36 | 89 | 31 | 12,7 | 0.350 | + | 245 TPL 204 | 0.195 | - | 246 TPL 204 | 247 TPL 204 | 7800 | 5300 | 50 |
| PA | Ø 25 | 99 | 27,5 | 11,5 | 64 | 76 | M16 | 33 | 36 | 89 | 34 | 14,3 | 0.400 | + | 245 TPL 205 | 0.205 | - | 246 TPL 205 | 247 TPL 205 | 8600 | 6250 | 40 |
| PA | Ø 30 | 123,5 | 34,5 | 11,5 | 76 | 86,5 | M16 | 34,5 | 63 | 100 | 38,1 | 15,9 | 0.550 | + | 245 TPL 206 | 0.240 | - | 246 TPL 206 | 247 TPL 206 | 12000 | 9000 | 30 |



